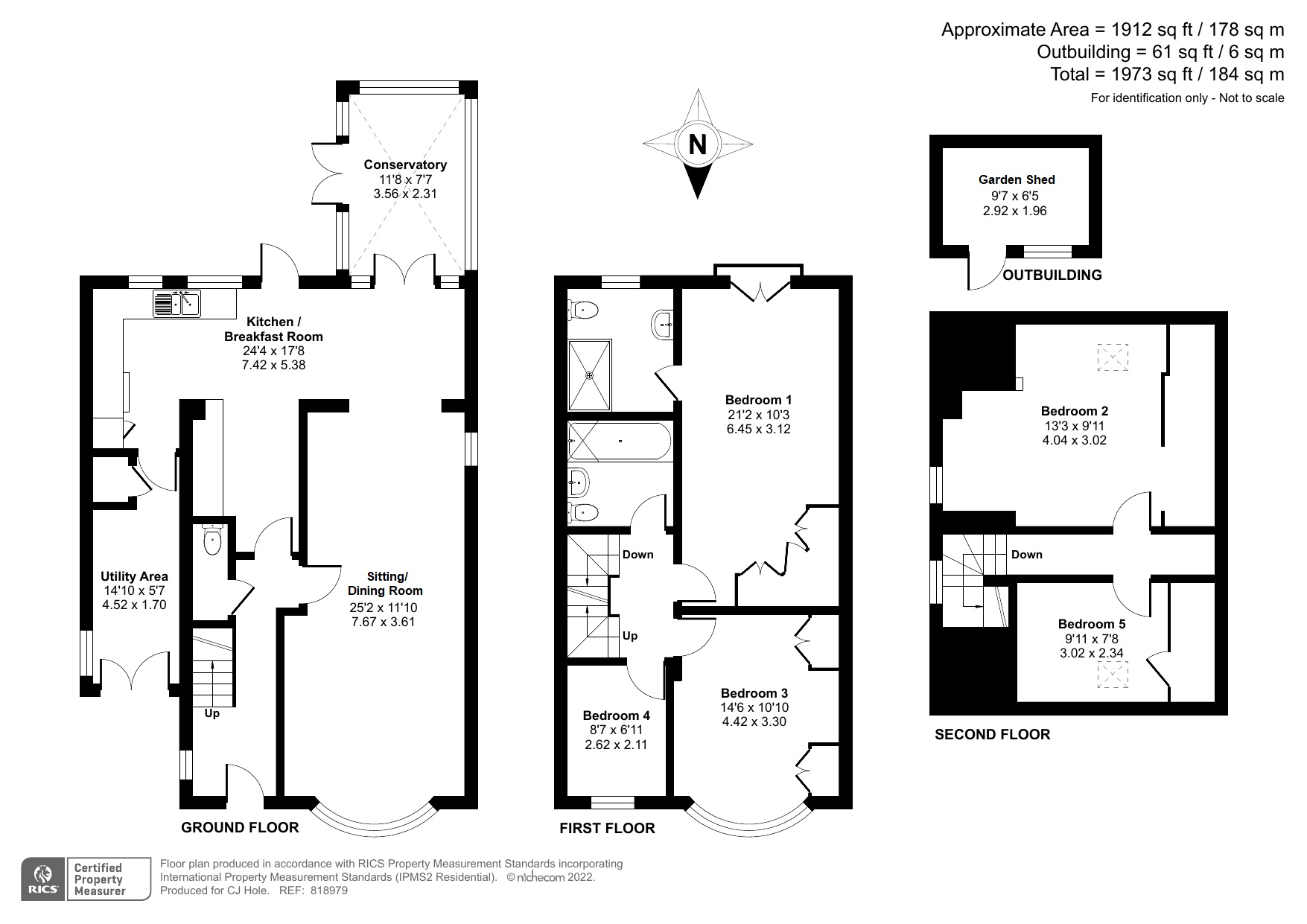
- hall & cloakroom
- open plan sitting/dining room
- kitchen/breakfast room & utility room
- conservatory
- principle bedroom with Juliet balcony & en-suite shower room
- 4 further bedrooms
- family bathroom
- gated drive/off road parking, south facing garden,
- Balcarras School 0.62 miles, attractive family home moments from countryside & extensive amenities
- gas ch, double glazed, council tax band E
An extensively upgraded and significantly extended bay fronted detached house occupying a fine position in Greenway Lane just a short stroll from Sixways. The accommodation is arranged over three floors offering delightful views from the upper levels towards Leckhampton Hill and over St Edward’s Junior School playing fields at the front. Set back behind a walled frontage, with a gated pavioured drive providing space for several vehicles and secure gated side access to the rear. The main entrance leads into a hall with a cloakroom off and doors to the principal ground floor rooms. An open plan sitting/dining room flows through to a kitchen/breakfast room which has patio doors to a conservatory and a door into a utility room. The utility room also has external doors at the front. The kitchen is well equipped with integrated appliances and granite worktops. The first floor provides three bedrooms including a superb principal bedroom with Juliet balcony and en-suite shower room and a family bathroom. The second floor provides two further bedrooms, either of which would make a perfect home office, enjoying particularly impressive views at the rear. The rear garden is south facing and has been landscaped to include a large patio area ideal for al-fresco entertainment, a lawn and a high quality, insulated shed. Freehold. Situation Greenway Lane is a desirable road comprising substantial individual homes with open countryside to the East and an eclectic mix of local facilities at Sixways just around the corner. There are extensive amenities in Charlton Kings including shops, doctor’s surgeries, a library, church, pubs and restaurants whilst Balcarras School is approximately 0.62 miles distance (as the crow flies). Both the DoubleTree by Hilton hotel with gym and health spa and Lilley Brook Golf Club are just over a mile away. Cheltenham is a superb place for shopping with an abundance of main high street shops, specialist boutiques, cafés and restaurants. Education is very well catered for including The Cheltenham Ladies’ College, Cheltenham College, Pates Grammar School, St. Edward’s and Dean Close. There are excellent sporting facilities in and around Cheltenham including indoor and outdoor swimming facilities, numerous golf courses and tennis, squash, hockey and croquet clubs. Host to annual cultural festivals including music, literature and jazz, the town is equally famous for horse racing and the annual Gold Cup. Communications are excellent with easy access to the M5 and there are regular train services to London Paddington in just over 2 hours.
| Tax Band | % | Taxable Sum | Tax |
|---|
Struggling to find a property? Get in touch and we'll help you find your ideal property.