Brymore Close, Prestbury, Cheltenham, GL52

£419,950 | Available

3 bedroom House For Sale

or call 01242 255101
Standout Features

Property Description

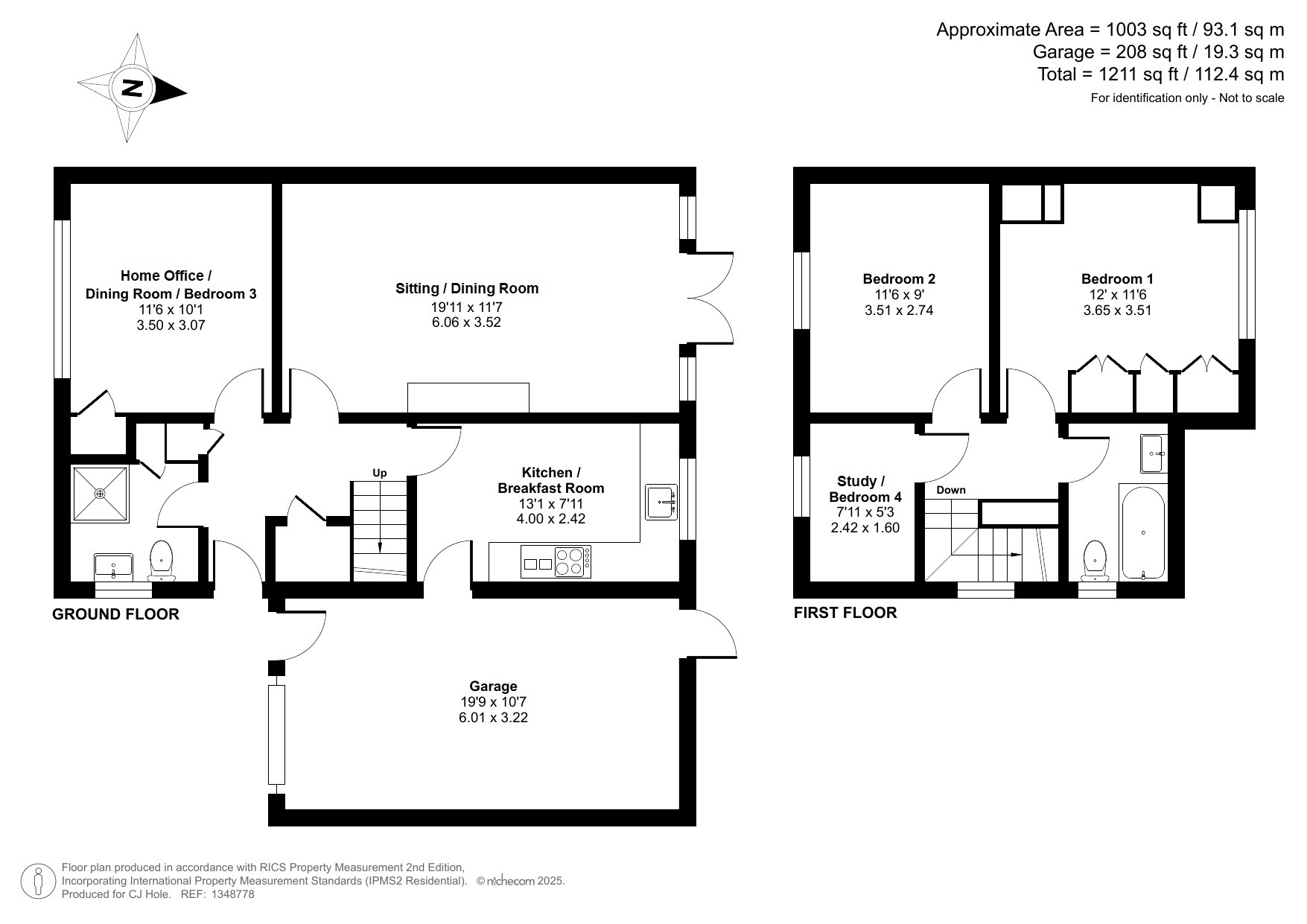
Description This deceptively spacious chalet-style three-bedroom semi-detached home offers flexible accommodation designed to suit a variety of lifestyles. On the ground floor, a bright dining room at the front could equally serve as a study or ground floor bedroom, while a generous sitting/dining room at the rear opens directly onto the garden, creating an ideal space for relaxing or entertaining. A well-proportioned kitchen/breakfast room and a downstairs shower room complete this level. Upstairs, there are two double bedrooms, a further single and a family bathroom. Outside, at the front the garden has been laid to a wildflower meadow and ample off-road parking is provided in front of a garage. A private rear garden has been landscaped to provide a haven for wildlife interspersed with a pond and a selection of undisturbed planting, evoking a sense of calm and quiet beauty. Further benefits include a large insulated shed, gas central heating, double glazing and the property is offered for sale with no onward chain. Situation Tucked away in a quiet cul-de-sac within the ever-popular village of Prestbury, this home combines a peaceful setting with excellent convenience. Local amenities including shops, pubs, and a primary school are all within easy reach, while Cheltenham town centre lies just a short distance away with its wider range of shopping, dining and cultural attractions. Prestbury is also home to Cheltenham Racecourse, surrounded by easily accessible footpaths that lead into open countryside ideal for gentle strolls and dog walking.


Additional Information
Tenure:
Freehold
Council Tax Band:
D

Mortgage calculator

Calculate Your Stamp Duty
£
Results
Stamp Duty To Pay:
Effective Rate:
Tax Band % Taxable Sum Tax

Brymore Close, Prestbury, Cheltenham, GL52

Struggling to find a property? Get in touch and we'll help you find your ideal property.