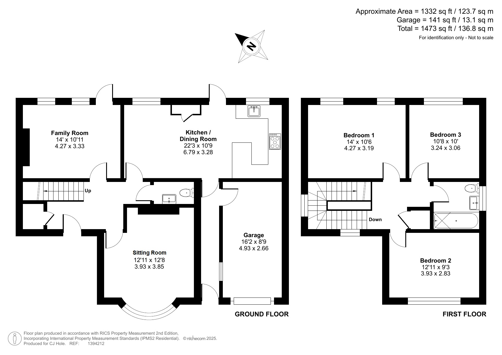
- generous hall & cloakroom
- sitting room & family room
- kitchen/dining room
- inner hall/passage
- 3 double bedrooms
- bathroom
- gas central heating & double glazed
- large frontage providing off road parking, attached garage
- c.70’ rear garden backing onto King George V playing fields
- potential to extend further, no onward chain, council tax band E
An attractive individually designed red-brick detached house which has been upgraded and extended in the past 10 years. Set well back from this wide tree-lined road in St Marks, complemented by a c.70’ rear garden backing onto King George V playing fields. The property was extended in 2017 to increase the kitchen/dining space and has room for further extension (subject to planning) at the side and rear, or a potential loft conversion to take full advantage of the wonderful rear outlook towards Cleeve Hill. A generous hall includes a dog-leg staircase and doors to all the ground floor rooms including a convenient cloakroom. A sitting room at the front features a bay window, whilst a cosy family room at the rear comes with a wood burner and French doors to the garden. A well-equipped kitchen/dining room includes a bespoke breakfast bar and Belfast sink, with a door to the garden and another door leading to an internal hall/passage with a door into the garage. Upstairs, there are three double bedrooms and a modern bathroom with a shower over the bath. Ample parking is provided at the front with a gated drive and a large garage at the side. The rear garden is a lovely feature of this home, extending to approximately 70’ in length and backing directly onto King George V playing field with mature vegetation along the rear boundary for privacy and security Situation Ideally located towards the top of this picturesque tree-lined avenue, Brooklyn Road offers a perfect blend of established residential living and exceptional convenience. With swift access to local shops, medical facilities including a dentist surgery, a popular local green space for recreational activities and dog walking, whilst Cheltenham train station is less than a mile away. Centre for the Cotswolds, Cheltenham is a beautiful and prosperous town with notable splendid Regency architecture reflecting its heritage. Cheltenham is a superb place for shopping with an abundance of main high street shops, specialist boutiques, cafés and restaurants. Education is very well catered for including The Cheltenham Ladies’ College, Cheltenham College, Pates Grammar School, St. Edward’s and Dean Close. There are excellent sporting facilities in and around Cheltenham including indoor and outdoor swimming facilities, numerous golf courses and tennis, squash, hockey and croquet clubs. Host to annual cultural festivals including music, literature and jazz, the town is equally famous for horse racing and the annual Gold Cup. Communications are excellent with easy access to the M5 and there are regular train services to London Paddington in just over 2 hours.
| Tax Band | % | Taxable Sum | Tax |
|---|
Struggling to find a property? Get in touch and we'll help you find your ideal property.